Home
Chi Siamo
Progetti
Contatti
Italiano
English
Prev
Next
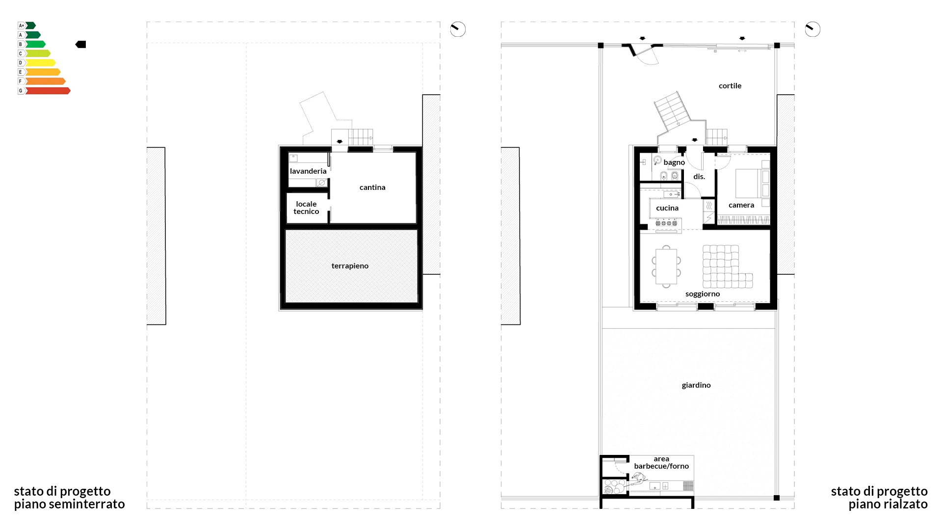
CASA BiBo
Prev
Next
CASA BiBo